XP 250 zadlážďovací poklop 400×400 mm – žárový pozink, zatížení C250 kN
XP 250 je robustní ocelový zadlážďovací poklop určený pro instalaci do zpevněných a dlažebních ploch. Varianta o rozměru 400×400 mm poskytuje pevné a těsné zakrytí šachet nebo revizních otvorů, přičemž třída zatížení C250 kN (≈ 25 t) umožňuje pojezd osobních vozidel a lehkých nákladních automobilů.
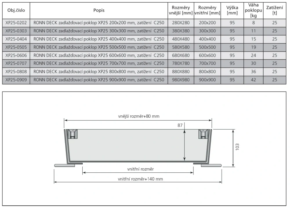
Hlavní vlastnosti poklopu XP 250 400×400 mm
Rozměr vnitřního krytu: 400 × 400 mm – ideální pro dlažbu, betonové i kamenné povrchy.
Vnější rám: 480 × 480 mm • výška konstrukce 95 mm • zajišťuje pevnost a stabilitu osazení.
Třída zatížení C250 kN: pro zatížení do 25 t (typicky osobní auta, lehčí dodávky).
Materiál: žárově pozinkovaná ocel – vysoká odolnost proti korozi a povětrnosti.
Šroubové uzavření s těsněním: zajišťuje vodotěsnost a tlumí pachy z kanalizace.
Použití: poklop do dlažby, chodníků, parkovišť, revizních a technických šachet.
Technické parametry
Kód produktu:
XP25-0404
Rozměr krytu (vnitřní):
400 × 400 mm
Rozměr rámu (vnější):
480 × 480 mm
Výška konstrukce:
95 mm
Třída zatížení:
C250 kN (≈ 25 tun)
Materiál:
Žárově pozinkovaná ocel
Povrchová úprava:
Zinkování – ochrana před korozí
Určení:
Zadlážděné plochy • exteriér • revizní šachty
Výhody žárově pozinkovaných poklopů XP 250
Poklopy XP 250 jsou určeny pro náročné venkovní instalace, kde je nutné zachovat pevnost a těsnost při zatížení vozidly. Žárový pozink zajišťuje dlouhou životnost a minimální údržbu. Poklop je vhodný do zámkové dlažby, betonové dlažby i litých povrchů.
„Obchod je vstřícný a ochotný. Nebylo mi doručeno díky dopravci vše, ale obchod se nabídl, že pokud dodání nebude včas, přiveze pan majitel zboží osobně.“
Ověřený zákazník
★★★★★
„Na objednávku jsem dostal prakticky okamžitě odpověď, že je zboží k vyzvednutí. Mají bezkonkurenční pracovní dobu a provoz i o víkendu.“
Ověřený zákazník
★★★★★
„Obchod má opravdu široký sortiment kolem kanalizace, dobré ceny a rychlé dodání. Navíc oceňuji vstřícné jednání a produkty, které jinde běžně nejsou.“
Ověřený zákazník
Videa, ukázky a tipy z praxe
Proč nakoupit právě u nás?
✔️ Široký výběr produktů ✔️ Cena dopravy ihned viditelná ✔️ Doprava až na místo stavby ✔️ Rychlé a spolehlivé dodání ✔️ Přehledné porovnání parametrů ✔️ Odborné poradenství zdarma
Náš e-shop a partneři potřebují Váš souhlas s použitím souborů cookies, aby Vám mohli zobrazovat informace týkající se Vašich zájmů.
Nastavení
Cookies - Nastavení
Zde máte možnost přizpůsobit soubory cookies dle kategorií, jak vyhovují nejlépe Vašim preferencím.
Technické cookies
Technické cookies jsou nezbytné pro správné fungování webové stránky a všech funkcí, které nabízí a nemohou být vypnuty bez zablokování funkcí stránky. Jsou odpovědné mj. za uchovávání produktů v košíku, přihlášení k zákaznickému účtu, fungování filtrů, nákupní proces nebo ukládání nastavení soukromí. Z tohoto důvodu technické cookies nemohou být individuálně deaktivovány nebo aktivovány a jsou aktivní vždy.
číst vícečíst méně
Analytické cookies
Analytické cookies nám umožňují měření výkonu našeho webu a našich reklamních kampaní. Jejich pomocí určujeme počet návštěv a zdroje návštěv našich internetových stránek. Data získaná pomocí těchto cookies zpracováváme anonymně a souhrnně, bez použití identifikátorů, které ukazují na konkrétní uživatelé našeho webu. Díky těmto cookies můžeme optimalizovat výkon a funkčnost našich stránek.
číst vícečíst méně
Preferenční cookies
Preferenční cookies umožňují, aby si webová stránka zapamatovala informace, které mění, jak se webová stránka chová nebo jak vypadá. Je to například Vámi preferovaný jazyk, měna, oblíbené nebo naposledy prohlížené produkty apod. Díky těmto cookies Vám můžeme doporučit na webu produkty a nabídky, které budou pro Vás co nejzajímavější.
číst vícečíst méně
Marketingové cookies
Marketingové cookies používáme my nebo naši partneři, abychom Vám dokázali zobrazit co nejrelevantnější obsah nebo reklamy jak na našich stránkách, tak na stránkách třetích subjektů. To je možné díky vytváření tzv. pseudonymizovaného profilu dle Vašich zájmů. Ale nebojte, tímto profilováním zpravidla není možná bezprostřední identifikace Vaší osoby, protože jsou používány pouze pseudonymizované údaje. Pokud nevyjádříte souhlas s těmito cookies, neuvidíte v reklamních sděleních obsah ušitý na míru Vašim zájmům.
číst vícečíst méně
Náš e-shop a partneři potřebují Váš souhlas s použitím souborů cookies, aby Vám mohli zobrazovat informace týkající se Vašich zájmů.
Nebude ti to chybět při práci?
Vypadá to, že jste si něco zapomněli v košíku. Dokončete objednávku ještě před odchodem, ať Vám zboží nevyfoukne někdo jiný! 🙂