- Úvod
- Venkovní kanalizace
- Revizní šachty a vpustě
- Revizní šachta průměr 1000mm
- Revizní šachta DN 1000x250mm přímá 1,5t - 1500mm
Revizní šachta DN 1000x250mm přímá 1,5t - 1500mm

- Kompletní specifikace
- Hodnocení 0
Revizní šachta DN 1000x250mm přímá 1,5t - 1500mmSkladem u výrobce, expedujeme do 14 dnů31 739 Kč/ ks26 231 Kč bez DPH
Kompletní revizní šachta DN 1000 s přímým vývodem DN 250 je praktické řešení pro kontrolu, čištění a napojení kanalizačního potrubí v systémech splaškové i dešťové kanalizace. Sestava je vhodná pro rodinné domy, bytové objekty, firemní areály i další stavby, kde je potřeba spolehlivá a dobře přístupná kanalizační revizní šachta DN 1000.
Základ sestavy tvoří plastová šachta z polypropylenu (PP), která vyniká nízkou hmotností, vysokou chemickou odolností a snadnou manipulací na stavbě. Díky modulárnímu systému lze výslednou výšku šachty zvolit podle konkrétních požadavků projektu. Tento produkt nabízíme jako kompletní set, takže zákazník získá všechny důležité části v jednom řešení.
Co obsahuje kompletní set
- 1× šachtové dno PP DN 1000 s přímým průtokem DN 250
- 1× šachtové prodloužení DN 1000
- 1× šachtový konus DN 1000/650
- 2× těsnění pro spojení jednotlivých dílů
- 1× kruhový kompozitní poklop 600 mm A15
Hlavní výhody revizní šachty DN 1000
- kompletní sestava připravená k osazení do kanalizačního systému
- přímý průtok DN 250 pro běžné kanalizační aplikace
- odolný materiál PP s dlouhou životností
- vodotěsné spojení pomocí těsnění
- možnost volby výšky šachty podle konkrétní stavby
- vhodné řešení pro pochozí plochy
Kde se revizní šachta používá
Revizní šachta DN 1000 přímá DN 250 se používá především jako kontrolní a čisticí bod na kanalizačních stokách a přípojkách. Je vhodná například pro:
- kanalizační přípojky
- dešťovou kanalizaci
- splaškovou kanalizaci
- rozvody kanalizace v rámci pozemku nebo objektu
- revizní místa s požadavkem na pohodlný přístup do šachty
Odolná plastová šachta s možností volby výšky
Samotné šachtové dno je navrženo pro přímý vývod DN 250, což je rozměr často používaný u kanalizačních přípojek a menších stok. Velký průměr šachty DN 1000 zároveň zajišťuje pohodlný přístup při kontrole, údržbě i čištění potrubí.
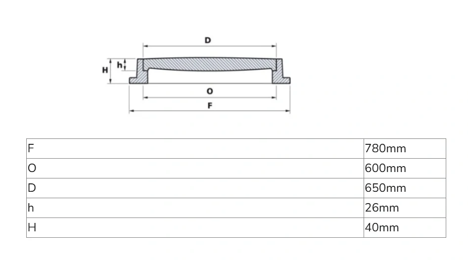
Kompozitní poklop A15 600 mm
Součástí sestavy je kruhový kompozitní poklop A15 o průměru 600 mm, který je vhodný především pro chodníky, pěší zóny, cyklostezky a další plochy s nízkým zatížením. Třída zatížení A15 je určena pro místa s pohybem chodců a cyklistů.
Vlastnosti poklopu:
- Materiál: vysoce kvalitní kompozit s dlouhou životností
- Zatížení: třída A15 pro pěší zóny, parky, chodníky a cyklostezky
- Průměr: 600 mm pro standardní použití u šachtových sestav
- Provedení: lehčí manipulace oproti tradičním litinovým poklopům
- Vzhled: nenápadné a praktické řešení pro soukromé i veřejné plochy
Proč koupit kompletní set
Nákup kompletní sestavy šetří čas při výběru kompatibilních dílů a snižuje riziko, že některá část bude chybět nebo nebude rozměrově odpovídat. Pokud hledáte revizní šachtu DN 1000 DN 250 s možností přizpůsobení výšky a s kompletním horním zakončením pro pochozí plochy, je tento set vhodnou volbou pro profesionální i soukromé použití.














.png)

